
2021國標LED專用教室護眼燈的優勢......
2021
智慧照明教室護眼燈改造方案,上課模式,自習模式......
2021
教室燈怎樣改造才能達國家2021新標準?我們先了解一下2021年新標準......
2021
湖南省關于青少年近視護眼燈光改造實施方案及相關的文件
2021
舞蹈教室用什么燈呢?每個學校都有舞蹈室,那節能護眼燈改造也是包含了舞蹈室和各個科室的....
2021
河南省護眼教室燈光改造試驗區學校名單
2021
我們不止只生產教室燈我們還可以全國施工,我司是提供一站式教育照明解決方案...
2021
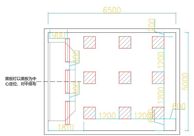
LED護眼教室燈及黑板燈怎么分布才能達標,首先我們要知道標準和現場情況......
2021
中小學教學用房的照明標準:教室桌面平均照度:≥300lx 教室照度均勻度(Uo)≥0.7......
2021
中小學LED專用護眼教室燈全校解決方案,學校整體護眼燈光改造方案,教室走廊辦公室體育場......
2021
教室燈你真的了解嗎?從煤油燈蠟燭再到燈泡一直到白熾燈、熒光燈、LED燈....
2021
為什么2023年前中小學都要換成專用教室燈,小學生近視率達45.71%,初中生近視率突增到74.36%,高中生......
2021
中小學教室燈常見的問題及解決方法,課桌照度及照度均勻度普遍低于國家標準......
2021
學校教室照明都用什么燈呢?教室現在全部采用專用教室燈和黑板燈....
2021
教室燈改造,小學生近視率達45.71%,初中生近視率突增到......
2021
Copyright © 2021 廣州百分百綜合能源有限公司 www.jezm.com.cn 版權所有 備案號:粵ICP備2020111106號-1